Rundstamm-Saunahaus nahe Dresden

- Rundstammsauna aus Weißtanne -

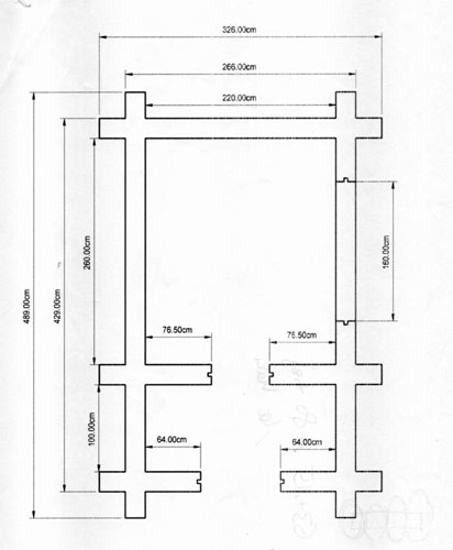
Saunagröße 489 cm x 326 cm x 270 cm (Giebelhöhe) – Sauna: 220 cm x 220 cm

Besonderheiten dieses Saunahauses: Haus aus Weißtanne – Punktfundament – Vorraum – Fenster – Satteldach

– PLZ-Bereich 01… – Nähe Dresden –

Bereit für ein persönliches Angebot?

  • Gefällt Ihnen dieser Grundriss?
  • Trifft er auch auf Ihre Einbausituation zu?
Gern unterbreiten wir Ihnen ein kostenloses Angebot basierend auf dieser Sauna: Saunagröße 489 cm x 326 cm x 270 cm (Giebelhöhe) – Sauna: 220 cm x 220 cm Bitte geben Sie uns die Info „Rundstamm-Saunahaus nahe Dresden“ mit.

Skizze dieser Sauna

Oder: Anfrage direkt an Familie

Hier können Sie per e-mail oder über telefonischen Rückruf direkt mit unseren Kunden Kontakt aufnehmen, evtl. auch um einen Termin für eine Ortsbesichtigung bitten.